SUSSEX MARINE SITES OF NATURE CONSERVATION IMPORTANCE
| Site: 'Inner' Mulberry Harbour Unit | Ref. No. 3 | ||||||
| Location: 1 km SE of Pagham village | Other conservation designation?: Just outside proposed Solent SAC boundary |
||||||
| Lat./Long. position of centre of site: 50° 45' 55" N 0° 43' 60" W |
OS grid ref. of centre of site: SZ 898 963 |
Author: Robert Irving |
|||||
| Sea bed type: Wreckage of concrete and rusted steel. Surrounding sea bed of pebbles, gravel & silty sand. |
Depth range (below chart datum): 1-3 m |
Date identified: November 1995 |
|||||
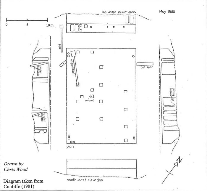
The 'Inner' or 'Near' Mulberry Harbour unit (so called because it is very close to the shore) is one of several items of WWII wreckage to be found in the shallow waters off Pagham. It was a D-1 unit, the smallest of all the Mulberry units used to make the artificial harbours for the invasion of France in 1944. The wreckage that remains is almost intertidal - the top 1.5 m dries at low water spring tides - and is an ideal site for snorkellers or novice divers. The site was fairly thoroughly surveyed by Sarah Cunliffe in 1981, who recorded a total of 28 species of algae and 69 species of invertebrates. As a result of its extremely shallow situation (and the predominance of kelp), this site is less dived than the Outer Mulberry a little further offshore.
[N.B. The following description is taken from Cunliffe (1981) in the absence of more recent records].
The wreckage is constructed of steel-reinforced concrete which in places has eroded to expose rusting steel rods. The SE side has scoured deeper into the sea bed than the NW (shore-facing) side, leaving the wreckage lying at an angle. The interior flotation compartments are accessible to the diver through open manholes, though a considerable amount of pebbles and gravel has accumulated here.
On the outside, the upper, horizontal surfaces have substantial growths of kelp (mostly Laminaria digitata with some L. saccharina) growing on them. Sessile organisms which have colonised the wreck are characteristic of a typical exposed rocky shore/shallow infralittoral community. Barnacles Balanus balanoides and mussels Mytilus edulis dominate the shallowest parts, below which is a zone of fucoid algae (Fucus vesiculosus and F. serratus), with red algae (including Chondrus crispus, Calliblepharis ciliata and Delesseria sanguinea) and occasional green algae (Cladophora spp., Enteromorpha spp. and Ulva lactuca). A variety of sponges (e.g. Esperiopsis fucorum, Dysidea fragilis, Halichondria spp. and Cliona celata) and sea squirts (e.g. Ascidiella aspersa, Clavelina lepadiformis and Botryllus schlosseri) are found on vertical surfaces. Internal surfaces are dominated by plumose anemones Metridium senile, with common oysters Ostrea edulis being found only on the NW (shore-facing) wall. Common fishes include the ballan wrasse Labrus bergylta, the goldsinny Ctenolabrus rupestris and corkwing Crenilabrus melops, with pollack Pollachius pollachius and occasional whiting Merlangius merlangus and grey mullet Chelon labrosus.
References:Cunliffe, S.A. 1981. Survey of the sublittoral fauna and flora of the Inner Mulberry harbour, Pagham, West Sussex B.Sc. Thesis, Polytechnic of Central London |
|||||||
| Sussex Sublittoral Survey site no.: 5 | |||||||



:Link to this page
Copyright Sussex Biodiversity Records Centre © 2026